I nostri servizi
Diamo vita a spazi dove le persone possano crescere e vivere bene, con stile, competenza e cura.
Ristrutturazione completa
Dalla visione iniziale alla consegna chiavi in mano. Trasformiamo spazi abitativi in case moderne, funzionali e sicure per famiglie contemporanee e soddisfatte. Coordiniamo tutti i professionisti coinvolti per offrire al cliente un’esperienza fluida e con risultati di alta qualità.
Progettazione personalizzata
Il nostro team esperto crea soluzioni su misura, valorizzando l'autenticità e l'anima degli spazi. Ogni casa viene letta nella sua unicità, sia recuperando dettagli storici e caratteristiche originali che donano anima e personalità allo spazio. Il risultato sono ambienti funzionali, belli e coerenti con l’identità dell’immobile.
Permessi e riqualificazione
Gestiamo pratiche, autorizzazioni e normative con competenza legale, unendo burocrazia e strategia. Miglioriamo distribuzione, impianti ed estetica per aumentare il valore dell’immobile, rendendolo pronto per la vendita o l’affitto con soluzioni su misura.
Collaborazioni con agenzie immobiliari
Lavoriamo con agenzie selezionate offrendo case ristrutturate, documentazione in regola e una presentazione curata nei minimi dettagli. La nostra attenzione a qualità, estetica e chiarezza documentale semplifica il lavoro degli agenti e accelera il successo delle trattative.
Immobili ristrutturati
Proponiamo in vendita immobili interamente ristrutturati da noi, con soluzioni architettoniche moderne, ambienti funzionali e tutte le certificazioni in regola. Ogni casa è pensata per offrire comfort, stile e tranquillità a chi la abiterà—come se fosse per la nostra famiglia.
Progetti Recenti
Scopri come trasformiamo gli spazi in case straordinarie e funzionali.


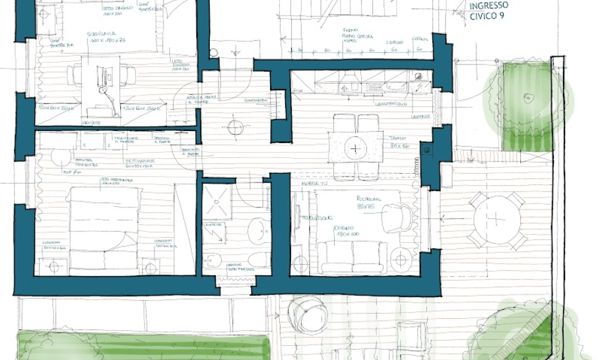
Borgo Trento – 128 m²
In un contesto prestigioso, questo appartamento è stato riorganizzato con eleganza e logica funzionale.
La nuova distribuzione ha permesso di aggiungere un secondo bagno in modo fluido e naturale. Finiture di alto livello e una cucina arredata dal design moderno completano lo spazio.
✔️ 2 camere, 2 bagni, cucina, soggiorno, ingresso
✔️ Pavimenti in legno, persiane elettriche, aria condizionata
✔️ Balconi e dettagli di pregio
✔️ Classe energetica da F a B (in aggiornamento)


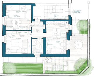
Golosine, Santa Lucia – 90 m²
Un’abitazione storica con numerose partizioni è stata completamente ripensata.
Abbiamo mantenuto due camere da letto e un bagno comodo, ma integrato soggiorno e cucina in un open space luminoso e contemporaneo. Serramenti e caldaia nuovi, gas e riscaldamento centralizzato.
✔️ Disegno moderno e funzionale
✔️ Cortile di proprietà esclusiva
✔️ Riscaldamento con termosifoni
✔️ Classe energetica da F a D


Balconi di Pescantina – 140 m²
Appartamento in zona residenziale tranquilla e familiare, immersa nel verde, con tutti i servizi essenziali facilmente raggiungibili.
Gli spazi sono stati ripensati per creare una zona giorno ampia e luminosa con cucina open space, e per aggiungere un secondo bagno, aumentando il comfort quotidiano per le 3 camere da letto disponibili. Ubicato in piano rialzato, serramenti e caldaia nuovi, gas e riscaldamento indipendente.
✔️ Moderna zona giorno open space
✔️ Riscaldamento a pavimento + pavimenti in legno
✔️ Finiture personalizzabili in corso d’opera
✔️ Cantina e garage interrato


San Giovanni Lupatoto – 170 m²
Riconversione integrale di uno spazio commerciale in un ambiente educativo pensato su misura.
Abbiamo trasformato questo locale al piano terra in una scuola moderna ed efficiente, con aule, ufficio, archivi e servizi, rispettando tutte le normative di sicurezza e accessibilità. Impianti rinnovati e predisposizioni per future espansioni.
✔️ Facciata a cortina
✔️ Sistema di climatizzazione e rinnovo aria a norma
✔️ Design adatto ai bambini e alle persone con disabilità
✔️ Finiture conformi al design e regole del franchising europeo
Immobile ristrutturato
Ristrutturazione completa
Immobile ristrutturato
Immobile in ristrutturazione




San Pietro di Legnago – 180 m²
Immobile da ristrutturare
Demolizione parziale, divisione e ristrutturazione completa di un immobile rustico inserito in un cortile moderno.
Attualmente inagibile, il fabbricato sarà trasformato in due appartamenti indipendenti di circa 90 m² ciascuno, con soluzioni architettoniche moderne e funzionali. Ogni unità prevede una zona giorno open space ampia e luminosa, due camere da letto e un bagno. Finestre, impianti, murature interne e copertura saranno completamente nuovi, nel pieno rispetto delle normative vigenti.
✔️ Due appartamenti trilocale
✔️ Parcheggio di proprietà nel cortile
✔️ Intervento completo di riqualificazione strutturale e impiantistica



Contatti
Bianchi Living S.R.L. - Verona
info@bianchiliving.it
© 2025. All rights reserved.
C.F. e P.IVA: 05112480230
www.bianchiliving.it
